Casa Jardín
Año: 2022
Elaborado por: Villicaña Estudio
Ubicación: Morelia, Mich. México
Casa Jardín se diseñó tomando en cuenta las necesidades económicas y personales, combinándolas con prototipos comunes de viviendas de un solo nivel, debido a la decisión y gusto propio del cliente.
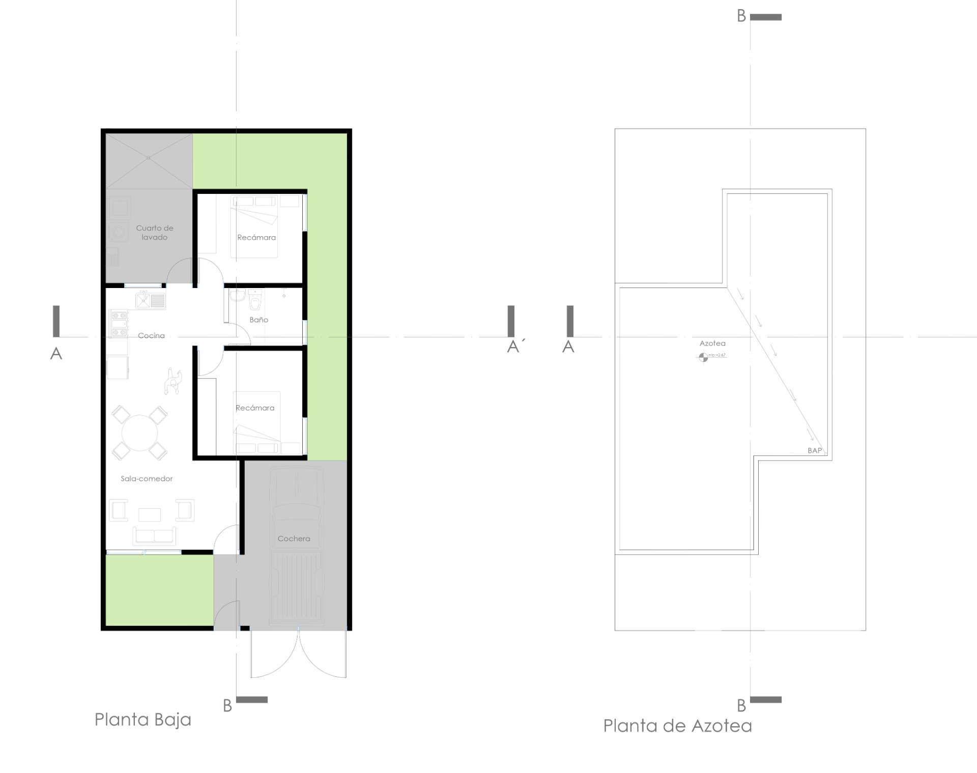
Es importante entender que al diseñar interferimos en la vida cotidiana de las personas y no se debe innovar agresivamente, ignorando la cultura e ideologías que se tienen, por lo que se mantiene el programa arquitectónico habitual de una casa de este estilo; Sala-comedor, cocina, baño, dos recámaras, cochera, patio de lavado y dos jardines. Este programa se desarrolla en una sola planta por su uso en personas de la tercera edad.
Manteniendo lo ya mencionado se ajusta la entrada para dejar el acceso totalmente libre para que la sala igualmente quede libre, esto ayudando en cuestiones de espacio y mobiliario. Se le da privacidad a el área de la cocina, baño y acceso a las recámaras y al patio de lavado.
Para la entrada se propone un jardín que ilumina y ventila la parte baja de la casa y le da una vista agradable, al costado derecho se propone un pasillo de servicios, de acceso y salida para mascotas y que ilumina y ventila las recámaras y el baño. La cocina se conecta con el patio de lavado y el jardín trasero, pero a su vez se comunica con la sala y el comedor por su ubicación lineal de las tres áreas para brindar comunicación y convivencia en toda la casa. En cuanto a la fachada, muestra un diseño sencillo y practico que se adapta al entorno.











